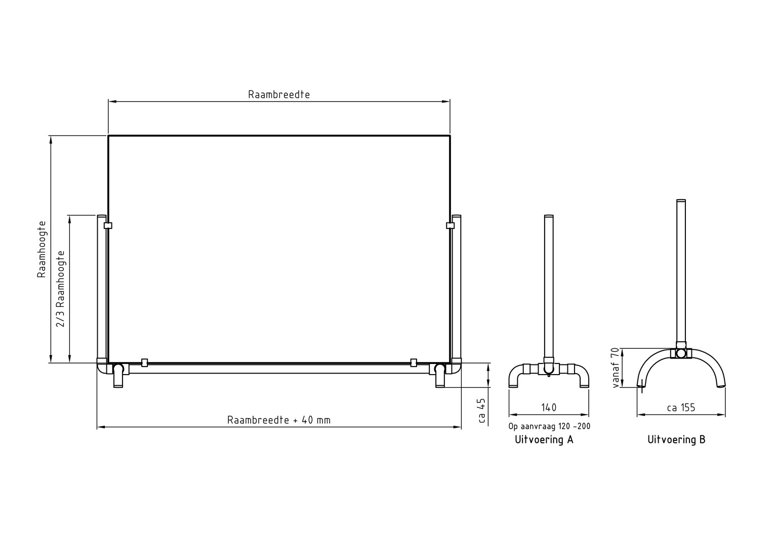
Standaards
Fotogallerij
Bij aankoop van een voorzetraam krijgt u 10% korting op een standaard.
Genoemde prijzen zijn afhaalprijzen.
Bij verzending van de stalen uitvoering wordt de tussenstang demontabel uitgevoerd, prijs op aanvraag.
Bij verzending van de stalen uitvoering wordt de tussenstang demontabel uitgevoerd, prijs op aanvraag.
Het voordeel hiervan is ook dat u altijd nog een langere tussenstang kunt plaatsen en de breedte (beperkt) instelbaar is.
Stalen uitvoering: Gespoten in hamerslag antraciet
Prijzen op aanvraag.
Richtprijs voor een raam van 60 x 40 cm bxh: € 55,-
Meerprijs deelbare uitvoering € 10,-
Verstelbare uitvoering op aanvraag.